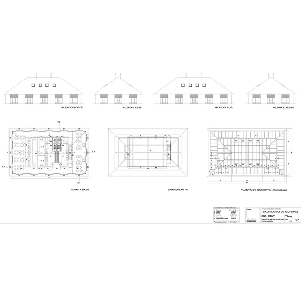
Balneario de Guitiriz