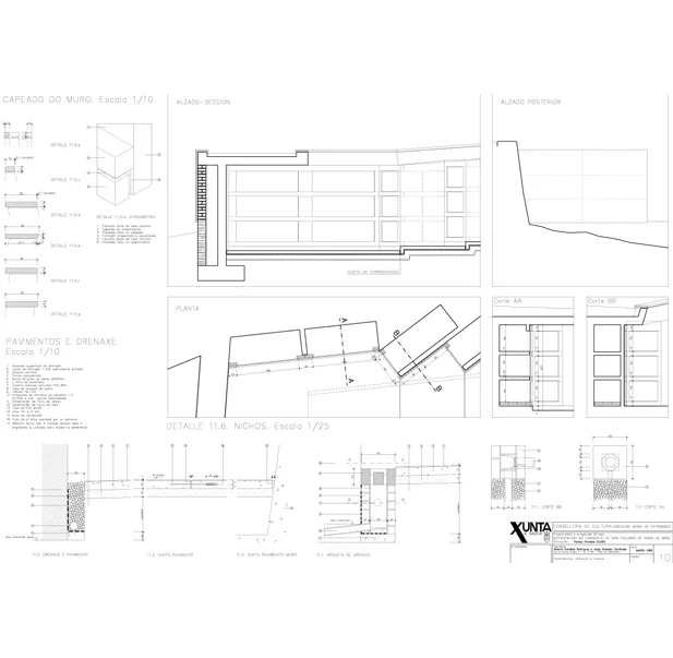
Intervención en San Facundo